| 賃料 | 359万400円 | 共益費・管理費 | |
|---|---|---|---|
| 礼金 | 1ヶ月 | 敷金 | |
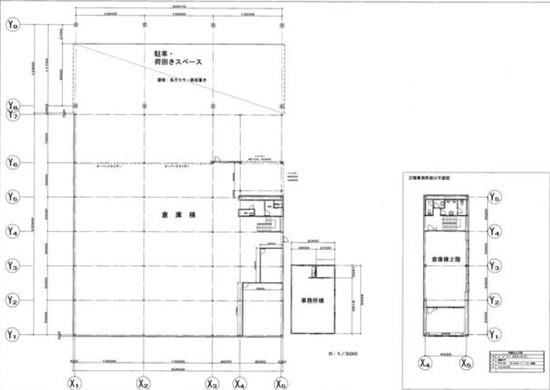
| 保証金 | 2100万円 | 建物面積 | 1182m² / 357.56坪 |
| 坪単価 | 1万円 | 築年月 | 199106 |
| 所在地 | 東京都江東区東雲1丁目10-5 東雲倉庫 | ||
| 交通 | 東京メトロ有楽町線 豊洲駅 徒歩13分 新交通ゆりかもめ 豊洲駅 徒歩14分 |
||
お電話でのお問い合わせ
0120-636-212
営業時間:9:00~19:00(土日祝休み)
この物件に関するお問い合わせの際は、
物件番号[51883]をお知らせください。
※不動産業者様からのお問い合わせはご遠慮ください。




















