| 賃料 | 150万円 | 共益費・管理費 | |
|---|---|---|---|
| 礼金 | 2ヶ月 | 敷金 | |
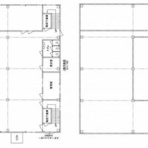
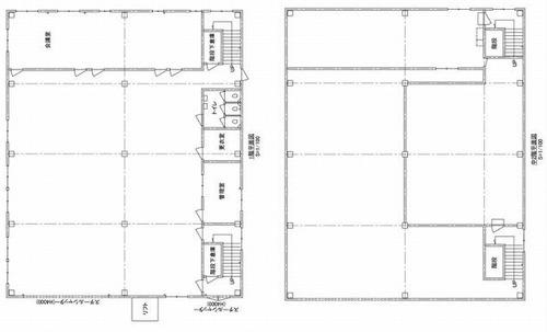
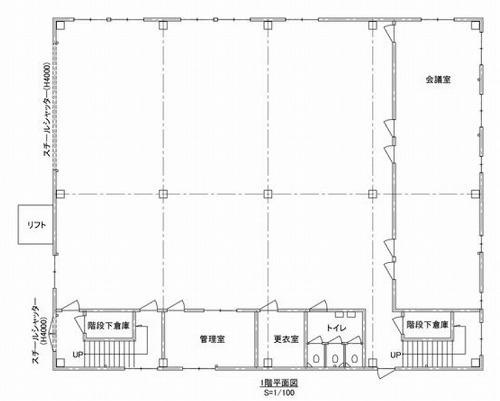
| 保証金 | 3ヶ月 | 建物面積 | 990m² / 299.48坪 |
| 坪単価 | 0.5万円 | 築年月 | 199004 |
| 所在地 | 東京都葛飾区水元4丁目18-7 水元物流センター | ||
| 交通 | JR常磐線 金町駅 バス( 乗10分 停歩3分) | ||
お電話でのお問い合わせ
0120-636-212
営業時間:9:00~19:00(土日祝休み)
この物件に関するお問い合わせの際は、
物件番号[44026]をお知らせください。
※不動産業者様からのお問い合わせはご遠慮ください。




















