東京都葛飾区 | 東京都葛飾区東四つ木1丁目9-2-T101 48.1坪 (物件番号43738)成約済み

賃料 54万円 共益費・管理費
礼金 1ヶ月 敷金 3ヶ月
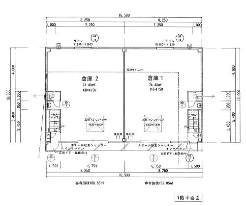
保証金 建物面積 158.85m² / 48.05坪
坪単価 1.12万円 築年月 202306
所在地 東京都葛飾区東四つ木1丁目9-2-T101 
交通 京成押上線 四ツ木駅 徒歩10分 

お電話でのお問い合わせ

0120-636-212

営業時間:9:00~19:00(土日祝休み)

この物件に関するお問い合わせの際は、
物件番号[43738]をお知らせください。

※不動産業者様からのお問い合わせはご遠慮ください。

この物件は成約済みです。
No longer available.

物件写真

東京都葛飾区東四つ木1丁目9-2-T101 48.1坪 貸倉庫・貸工場|L-Net(エルネット) 画像1 東京都葛飾区東四つ木1丁目9-2-T101 48.1坪 貸倉庫・貸工場|L-Net(エルネット) 画像2 東京都葛飾区東四つ木1丁目9-2-T101 48.1坪 貸倉庫・貸工場|L-Net(エルネット) 画像3 東京都葛飾区東四つ木1丁目9-2-T101 48.1坪 貸倉庫・貸工場|L-Net(エルネット) 画像4

物件詳細

物件種別 貸倉庫・貸工場 建物構造
敷地面積 所在階
取引形態 媒介 前面道路幅員

この物件の空き状況確認・資料請求・内見のご予約はこちらからお問い合わせください。

この物件は成約済みです。
No longer available.