| 賃料 | 780万2,600円 | 共益費・管理費 | |
|---|---|---|---|
| 礼金 | 1ヶ月 | 敷金 | 3ヶ月 |
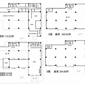
| 保証金 | 建物面積 | 3635.8m² / 1099.83坪 | |
| 坪単価 | 0.71万円 | 築年月 | 198707 |
| 所在地 | 東京都足立区千住関屋町8-12 千住関屋一棟貸倉庫(仮称) | ||
| 交通 | 東京メトロ千代田線 北千住駅 徒歩13分 | ||
お電話でのお問い合わせ
0120-636-212
営業時間:9:00~19:00(土日祝休み)
この物件に関するお問い合わせの際は、
物件番号[43341]をお知らせください。
※不動産業者様からのお問い合わせはご遠慮ください。




















