| 賃料 | 14万円 | 共益費・管理費 | |
|---|---|---|---|
| 礼金 | 敷金 | ||
| 保証金 | 3ヶ月 | 建物面積 | 46.28m² / 14坪 |
| 坪単価 | 1万円 | 築年月 | 197306 |
| 所在地 | 東京都千代田区神田和泉町 5階建ての2階部分 | ||
| 交通 | 東京メトロ日比谷線 秋葉原駅 徒歩3分 | ||
お電話でのお問い合わせ
0120-636-212
営業時間:9:00~19:00(土日祝休み)
この物件に関するお問い合わせの際は、
物件番号[52039]をお知らせください。
※不動産業者様からのお問い合わせはご遠慮ください。
関東の貸倉庫・貸工場・貸土地はおまかせください
| 賃料 | 14万円 | 共益費・管理費 | |
|---|---|---|---|
| 礼金 | 敷金 | ||
| 保証金 | 3ヶ月 | 建物面積 | 46.28m² / 14坪 |
| 坪単価 | 1万円 | 築年月 | 197306 |
| 所在地 | 東京都千代田区神田和泉町 5階建ての2階部分 | ||
| 交通 | 東京メトロ日比谷線 秋葉原駅 徒歩3分 | ||
お電話でのお問い合わせ
営業時間:9:00~19:00(土日祝休み)
この物件に関するお問い合わせの際は、
物件番号[52039]をお知らせください。
※不動産業者様からのお問い合わせはご遠慮ください。
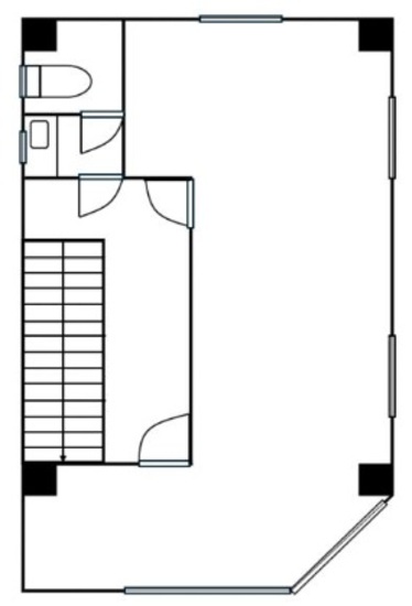
| 物件種別 | 貸倉庫・貸工場 | 建物構造 | RC |
|---|---|---|---|
| 敷地面積 | 所在階 | 2階 | |
| 取引形態 | 媒介 | 前面道路幅員 |
・5階建ての2階部分
・事務所利用相談可
・トイレあり
この物件の空き状況確認・資料請求・内見のご予約はこちらからお問い合わせください。
営業時間:9:00~19:00(土日祝休み)
この物件に関するお問い合わせの際は、
物件番号[52039]をお知らせください。