| 賃料 | 20.9万円 | 共益費・管理費 | |
|---|---|---|---|
| 礼金 | 1ヶ月 | 敷金 | 2ヶ月 |
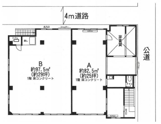
| 保証金 | 建物面積 | 82.5m² / 24.96坪 | |
| 坪単価 | 0.84万円 | 築年月 | 196711 |
| 所在地 | 東京都板橋区小豆沢4丁目 A | ||
| 交通 | 都営三田線 志村坂上駅 徒歩6分 JR埼京線 北赤羽駅 徒歩16分 |
||
お電話でのお問い合わせ
0120-636-212
営業時間:9:00~19:00(土日祝休み)
この物件に関するお問い合わせの際は、
物件番号[52031]をお知らせください。
※不動産業者様からのお問い合わせはご遠慮ください。




















