| 賃料 | 1,712万7,000円 | 共益費・管理費 | |
|---|---|---|---|
| 礼金 | 1.1ヶ月 | 敷金 | 6ヶ月 |
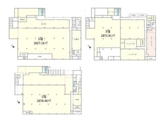
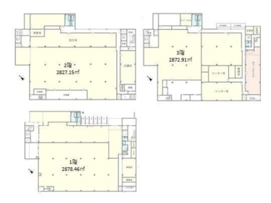
| 保証金 | 建物面積 | 8578.52m² / 2595坪 | |
| 坪単価 | 0.66万円 | 築年月 | 198910 |
| 所在地 | 東京都日野市新町5丁目5-22 日野市新町工場ビル1-3 | ||
| 交通 | JR八高線 小宮駅 徒歩13分 | ||
お電話でのお問い合わせ
0120-636-212
営業時間:9:00~19:00(土日祝休み)
この物件に関するお問い合わせの際は、
物件番号[51649]をお知らせください。
※不動産業者様からのお問い合わせはご遠慮ください。



















