| 賃料 | 238万7,000円 | 共益費・管理費 | |
|---|---|---|---|
| 礼金 | 1ヶ月 | 敷金 | |
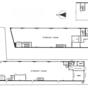
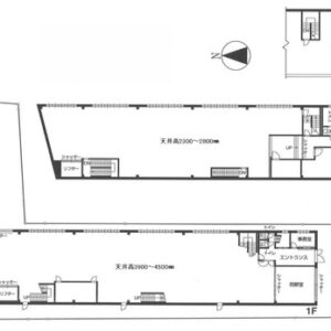
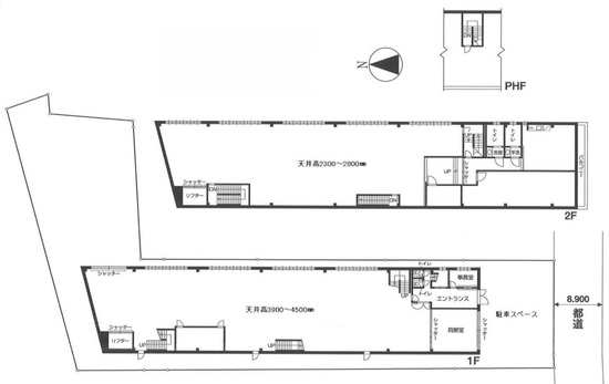
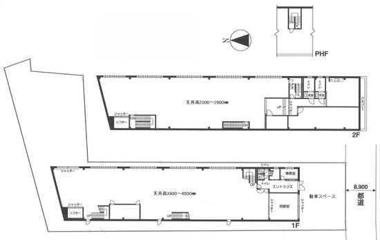
| 保証金 | 3ヶ月 | 建物面積 | 1025.15m² / 310.11坪 |
| 坪単価 | 0.77万円 | 築年月 | 200103 |
| 所在地 | 東京都練馬区南田中4丁目4-5 南田中倉庫 | ||
| 交通 | 西武新宿線 井荻駅 徒歩11分 | ||
お電話でのお問い合わせ
0120-636-212
営業時間:9:00~19:00(土日祝休み)
この物件に関するお問い合わせの際は、
物件番号[51635]をお知らせください。
※不動産業者様からのお問い合わせはご遠慮ください。




















