| 賃料 | 31.9万円 | 共益費・管理費 | 5,500円 |
|---|---|---|---|
| 礼金 | 1ヶ月 | 敷金 | |
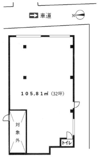
| 保証金 | 3ヶ月 | 建物面積 | 105.81m² / 32.01坪 |
| 坪単価 | 1万円 | 築年月 | 198901 |
| 所在地 | 東京都大田区大森東4丁目5-6 第一板屋ビル 1階 | ||
| 交通 | 京急本線 大森町駅 徒歩14分 京急本線 梅屋敷駅 徒歩1280m 徒歩16分 |
||
お電話でのお問い合わせ
0120-636-212
営業時間:9:00~19:00(土日祝休み)
この物件に関するお問い合わせの際は、
物件番号[44879]をお知らせください。
※不動産業者様からのお問い合わせはご遠慮ください。




















