| 賃料 | 942万900円 | 共益費・管理費 | 607,348円 |
|---|---|---|---|
| 礼金 | 1ヶ月 | 敷金 | 6ヶ月 |
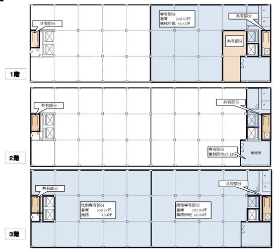
| 保証金 | 建物面積 | 3544.72m² / 1072.28坪 | |
| 坪単価 | 0.88万円 | 築年月 | 199804 |
| 所在地 | 東京都江東区新砂1丁目5-23 東陽流通センター | ||
| 交通 | 東京メトロ東西線 東陽町駅 徒歩8分 | ||
お電話でのお問い合わせ
0120-636-212
営業時間:9:00~19:00(土日祝休み)
この物件に関するお問い合わせの際は、
物件番号[44177]をお知らせください。
※不動産業者様からのお問い合わせはご遠慮ください。



















