| 賃料 | 29.7万円 | 共益費・管理費 | 5,500円 |
|---|---|---|---|
| 礼金 | 1ヶ月 | 敷金 | 3ヶ月 |
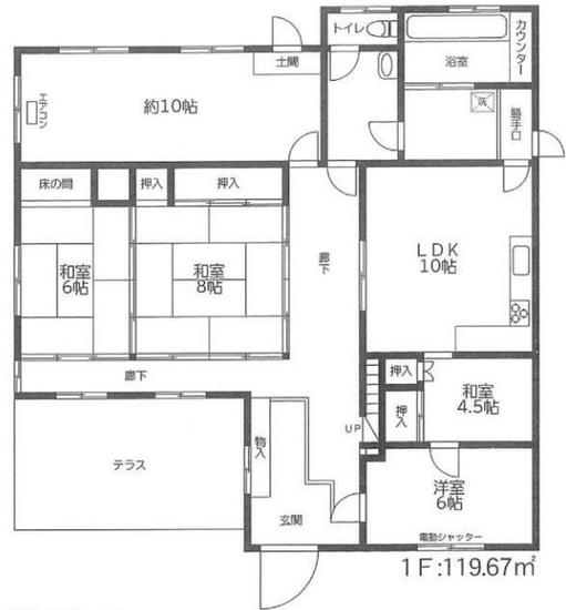
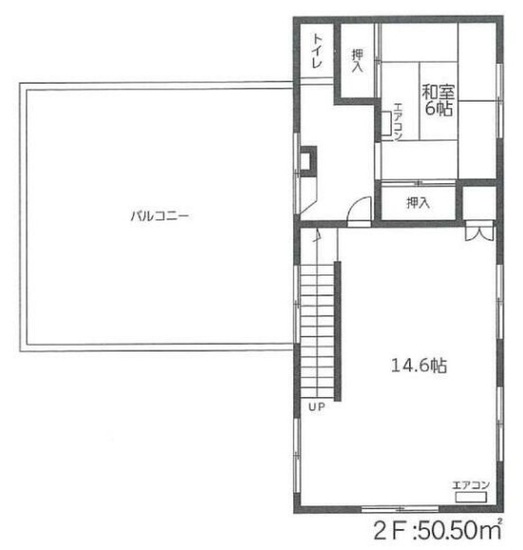
| 保証金 | 建物面積 | 202.92m² / 61.38坪 | |
| 坪単価 | 0.48万円 | 築年月 | 196505 |
| 所在地 | 神奈川県横浜市都筑区折本町1189 田口貸事務所・倉庫 | ||
| 交通 | 横浜市営地下鉄ブルーライン 新羽駅 徒歩26分 | ||
お電話でのお問い合わせ
0120-636-212
営業時間:9:00~19:00(土日祝休み)
この物件に関するお問い合わせの際は、
物件番号[65131]をお知らせください。
※不動産業者様からのお問い合わせはご遠慮ください。




















