関東の貸倉庫・貸工場・貸土地はおまかせください
事業用物件専門サイト
関東の貸倉庫・貸工場 エルネット
営業時間
9:00~19:00(土日祝休み)
ホーム
Home
物件検索
東京
Tokyo
神奈川
Kanagawa
埼玉
Saitama
千葉
Chiba
栃木
Tochigi
群馬
Gunma
茨城
Ibaraki
ご利用ガイド
Guide
よくある質問
FAQ
お役立ちコラム
Column
物件リクエスト
トップページ
>
賃貸 > 検索 JR横浜線小机駅
賃貸 > 検索 JR横浜線小机駅 の貸倉庫・貸工場
価格
面積
間取
住所
築年月
登録日
7件
神奈川県横浜市港北区小机町 239.8坪 貸倉庫・貸工場|L-Net(エルネット)
成約済み
価格
184.8万円
貸倉庫・貸工場
所在地
神奈川県横浜市港北区 小机町 平屋建て
交通
JR横浜線 小机駅 徒歩14分
築年月
198902
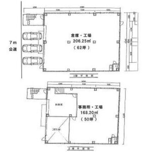
面積
792.6m²
物件番号
65061
礼金
2ヶ月
保証金
6ヶ月
おすすめポイント
・工場/倉庫利用相談可(食品加工倉庫におすすめ) ・第三京浜 港北ICより約950m/首都高 横浜港北ICより約1.2km ・駐車スペースあり ・シャッターあり ・トイレ/流し台あり ・照明あり ・キュービクル/冷蔵庫/冷凍庫/空調機/ウォシュレット(すべて残置物) ・付近に運送会社営業所、コンビニあり
物件の詳細を見る
神奈川県横浜市都筑区川向町 110.4坪 貸倉庫・貸工場|L-Net(エルネット)
成約済み
価格
88万円
貸倉庫・貸工場
所在地
神奈川県横浜市都筑区 川向町 2階建
交通
横浜市営地下鉄ブルーライン 仲町台駅 徒歩33分
JR横浜線 小机駅 徒歩22分
築年月
199207
面積
364.9m²
物件番号
64902
礼金
1ヶ月
保証金
4ヶ月
おすすめポイント
・第三京浜道路 港北IC/緑産業道路近く ・駐車場(約5台)あり ・シャッターあり ・1F天井高 シャッター下:約2.9m/梁下:約3.4m ・動力あり ・スケルトン ・24時間/土日祝日利用可能 ・設備(残置物) 電灯/上下水道/プロパンガス ・付近にコンビニ、スーパー、飲食店あり
物件の詳細を見る
神奈川県横浜市都筑区川向町 121.3坪 貸倉庫・貸工場|L-Net(エルネット)
成約済み
価格
160.12万円
貸倉庫・貸工場
所在地
神奈川県横浜市都筑区 川向町
交通
JR横浜線 小机駅 徒歩29分
築年月
202503
面積
401.07m²
物件番号
64834
礼金
1ヶ月
敷金
6ヶ月
おすすめポイント
・第三京浜道路/首都高速神奈川7号横浜北線 港北ICより車で1分 ・駐車場(3台分以上)あり ・電動シャッターあり ・事務所あり ・24時間/土日祝日利用可能 ・設備 男女別トイレ(2ヶ所)/給湯/プロパンガス/上下水道 ・付近にガソリンスタンド、コンビニ、飲食店あり
物件の詳細を見る
神奈川県横浜市港北区小机町660-2 17.4坪 貸倉庫・貸工場|L-Net(エルネット)
成約済み
価格
110万円
貸倉庫・貸工場
所在地
神奈川県横浜市港北区 小机町660-2 小机町BASE
交通
JR横浜線 小机駅 徒歩18分
築年月
198502
面積
57.6m²
物件番号
61396
礼金
1ヶ月
敷金
5ヶ月
物件の詳細を見る
神奈川県横浜市都筑区川向町1190 165.5坪 貸倉庫・貸工場|L-Net(エルネット)
成約済み
価格
165万円
貸倉庫・貸工場
所在地
神奈川県横浜市都筑区 川向町1190
交通
JR横浜線 小机駅 徒歩27分
築年月
200109
面積
546.95m²
物件番号
61131
礼金
1ヶ月
保証金
5ヶ月
物件の詳細を見る
神奈川県横浜市都筑区川向町747-1 711.8坪 貸倉庫・貸工場|L-Net(エルネット)
成約済み
価格
520万7,900円
貸倉庫・貸工場
所在地
神奈川県横浜市都筑区 川向町747-1 川向町713坪貸倉庫
交通
JR横浜線 小机駅 徒歩19分
築年月
199809
面積
2353m²
物件番号
60788
保証金
2ヶ月
物件の詳細を見る
神奈川県横浜市都筑区川向町747-1 713坪 貸倉庫・貸工場|L-Net(エルネット)
成約済み
価格
494万1,300円
貸倉庫・貸工場
所在地
神奈川県横浜市都筑区 川向町747-1
交通
JR横浜線 小机駅 徒歩21分
築年月
199809
面積
2357.12m²
物件番号
60794
礼金
1ヶ月
敷金
3ヶ月
物件の詳細を見る
価格
面積
間取
住所
築年月
登録日
7件
前のページにもどる
物件名・物件番号検索
物件検索(キーワード)
物件検索
ご希望の種別を選択して下さい
種別選択
賃貸 全て
貸倉庫・貸工場
以下ご希望の条件を選択して物件検索ボタンを押して下さい
駅選択
路線選択
JR鹿島線
JR鶴見線
JR高崎線
JR青梅線
JR総武線
JR総武本線
JR相模線
JR烏山線
JR水郡線
JR水戸線
JR武蔵野線
JR横須賀線
JR横浜線
JR東金線
JR東海道本線
JR東北本線
JR日光線
JR成田線
JR御殿場線
JR常磐線
JR川越線
JR山手線
JR外房線
JR埼京線
JR南武線
JR内房線
JR八高線
JR信越本線
JR京葉線
JR京浜東北・根岸線
JR五日市線
JR久留里線
JR中央線
JR中央本線
JR両毛線
JR上越線
JR上越新幹線
鹿島臨海鉄道大洗鹿島線
関東鉄道竜ヶ崎線
関東鉄道常総線
金沢シーサイドライン
都電荒川線
都営浅草線
都営新宿線
都営大江戸線
都営三田線
西武狭山線
西武池袋線
西武有楽町線
西武新宿線
西武拝島線
西武多摩湖線
西武多摩川線
西武国分寺線
芝山鉄道
箱根登山鉄道
秩父鉄道
真岡鐵道
相鉄本線
相鉄いずみ野線
湘南新宿ライン高海
湘南新宿ライン宇須
湘南モノレール
流鉄流山線
江ノ島電鉄
横浜市営地下鉄ブルーライン
横浜市営地下鉄グリーンライン
東葉高速鉄道
東武野田線
東武越生線
東武桐生線
東武東上線
東武日光線
東武小泉線
東武宇都宮線
東武大師線
東武佐野線
東武伊勢崎線
東武亀戸線
東急目黒線
東急田園都市線
東急池上線
東急東横線
東急大井町線
東急多摩川線
東急世田谷線
東京臨海高速鉄道りんかい線
東京モノレール
東京メトロ銀座線
東京メトロ東西線
東京メトロ有楽町線
東京メトロ日比谷線
東京メトロ南北線
東京メトロ半蔵門線
東京メトロ千代田線
東京メトロ副都心線
東京メトロ丸ノ内線
日暮里舎人ライナー
新京成電鉄
新交通ゆりかもめ
成田スカイアクセス
山万ユーカリが丘線
小田急江ノ島線
小田急小田原線
小田急多摩線
小湊鉄道
多摩都市モノレール
埼玉高速鉄道
埼玉新都市交通
千葉都市モノレール
北総鉄道
伊豆箱根鉄道大雄山線
京王高尾線
京王線
京王相模原線
京王井の頭線
京成金町線
京成本線
京成押上線
京成千葉線
京成千原線
京急空港線
京急本線
京急大師線
京急久里浜線
上毛電気鉄道
上信電鉄
わたらせ渓谷鐵道
みなとみらい線
つくばエクスプレス
いすみ鉄道
駅選択
八王子みなみ野
橋本
相模原
矢部
淵野辺
古淵
町田
成瀬
十日市場
中山
鴨居
小机
新横浜
大口
市区選択
県選択
茨城県
栃木県
群馬県
埼玉県
千葉県
東京都
神奈川県
市区選択
賃料
下限なし
10万円
15万円
20万円
25万円
30万円
35万円
40万円
45万円
50万円
60万円
70万円
80万円
90万円
100万円
120万円
140万円
160万円
180万円
200万円
300万円
~
10万円
15万円
20万円
25万円
30万円
35万円
40万円
45万円
50万円
60万円
70万円
80万円
90万円
100万円
120万円
140万円
160万円
180万円
200万円
300万円
上限なし
価格
下限なし
300万円
400万円
500万円
600万円
700万円
800万円
900万円
1000万円
1100万円
1200万円
1300万円
1400万円
1500万円
1600万円
1700万円
1800万円
1900万円
2000万円
3000万円
5000万円
7000万円
1億円
~
300万円
400万円
500万円
600万円
700万円
800万円
900万円
1000万円
1100万円
1200万円
1300万円
1400万円
1500万円
1600万円
1700万円
1800万円
1900万円
2000万円
3000万円
5000万円
7000万円
1億円
上限なし
面積
下限なし
10m²
15m²
20m²
25m²
30m²
35m²
40m²
50m²
60m²
70m²
80m²
90m²
100m²
200m²
300m²
400m²
500m²
600m²
700m²
800m²
900m²
1000m²
~
10m²
15m²
20m²
25m²
30m²
35m²
40m²
50m²
60m²
70m²
80m²
90m²
100m²
200m²
300m²
400m²
500m²
600m²
700m²
800m²
900m²
1000m²
上限なし
最新情報
2026.01.14
東京都江戸川区中央 76.1坪 貸倉庫・貸工場|L-Net(エルネット)
2026.01.14
神奈川県綾瀬市大上 299.5坪 貸倉庫・貸工場|L-Net(エルネット)
2026.01.14
埼玉県加須市琴寄 71.7坪 貸倉庫・貸工場|L-Net(エルネット)
2026.01.14
群馬県佐波郡玉村町大字藤川 316.7坪 貸倉庫・貸工場|L-Net(エルネット)
2026.01.14
茨城県常総市水海道天満町 40坪 貸倉庫・貸工場|L-Net(エルネット)
東京
new
東京都江戸川区中央 76.1坪 貸倉庫・貸工場|L-Net(エルネット)
71.5万円
江戸川区中央
JR総武線新小岩駅
→物件詳細
new
東京都大田区南六郷3丁目19-10 14.5坪 貸倉庫・貸工場|L-Net(エルネット)
11万円
大田区南六郷3丁目19-10
京急本線雑色駅
→物件詳細
new
東京都板橋区小豆沢4丁目 25坪 貸倉庫・貸工場|L-Net(エルネット)
20.9万円
板橋区小豆沢4丁目
都営三田線志村坂上駅
→物件詳細
new
東京都板橋区小豆沢4丁目 29.5坪 貸倉庫・貸工場|L-Net(エルネット)
24.2万円
板橋区小豆沢4丁目
都営三田線志村坂上駅
→物件詳細
神奈川
new
神奈川県綾瀬市大上 299.5坪 貸倉庫・貸工場|L-Net(エルネット)
148.5万円
綾瀬市大上
相鉄本線さがみ野駅
→物件詳細
new
神奈川県川崎市川崎区浅野町2-2 177.8坪 貸倉庫・貸工場|L-Net(エルネット)
176.28万円
川崎市川崎区浅野町2-2
JR南武線小田栄駅
→物件詳細
new
神奈川県茅ヶ崎市堤 貸倉庫・貸工場|L-Net(エルネット)
23万円
茅ヶ崎市堤
→物件詳細
new
神奈川県川崎市多摩区菅3丁目11-39 24.8坪 貸倉庫・貸工場|L-Net(エルネット)
15.84万円
川崎市多摩区菅3丁目11-39
京王相模原線京王稲田堤駅
→物件詳細
埼玉
new
埼玉県加須市琴寄 71.7坪 貸倉庫・貸工場|L-Net(エルネット)
22万円
加須市琴寄
湘南新宿ライン宇須栗橋駅
→物件詳細
new
埼玉県八潮市大字大曽根698-1 219.6坪 貸倉庫・貸工場|L-Net(エルネット)
144.96万円
八潮市大字大曽根698-1
→物件詳細
new
埼玉県八潮市大字二丁目1041-1 145坪 貸倉庫・貸工場|L-Net(エルネット)
71.77万円
八潮市大字二丁目1041-1
→物件詳細
new
埼玉県川越市大字大袋122-2 115.2坪 貸倉庫・貸工場|L-Net(エルネット)
25万円
川越市大字大袋122-2
JR川越線西川越駅
→物件詳細
千葉
new
千葉県山武郡芝山町山田892-1 63.6坪 貸倉庫・貸工場|L-Net(エルネット)
17.6万円
山武郡芝山町山田892-1
芝山鉄道芝山千代田駅
→物件詳細
new
千葉県佐倉市臼井603 65.8坪 貸倉庫・貸工場|L-Net(エルネット)
29.7万円
佐倉市臼井603
京成本線京成臼井駅
→物件詳細
new
千葉県柏市藤ケ谷1787-24 86.8坪 貸倉庫・貸工場|L-Net(エルネット)
45万円
柏市藤ケ谷1787-24
東武野田線高柳駅
→物件詳細
new
千葉県我孫子市中峠台10 45坪 貸倉庫・貸工場|L-Net(エルネット)
11万円
我孫子市中峠台10
JR成田線湖北駅
→物件詳細
MENU
ホーム
Home
物件検索
東京
Tokyo
神奈川
Kanagawa
埼玉
Saitama
千葉
Chiba
栃木
Tochigi
群馬
Gunma
茨城
Ibaraki
ご利用ガイド
Guide
よくある質問
FAQ
お役立ちコラム
Column
物件リクエスト