| 賃料 | 98.5万円 | 共益費・管理費 | |
|---|---|---|---|
| 礼金 | 敷金 | 4ヶ月 | |
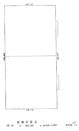
| 保証金 | 建物面積 | 658.11m² / 199.08坪 | |
| 坪単価 | 0.49万円 | 築年月 | 198308 |
| 所在地 | 埼玉県新座市畑中1丁目23-17 ヨシザワ倉庫8号倉庫 | ||
| 交通 | 東武東上線 朝霞台駅 徒歩41分 | ||
お電話でのお問い合わせ
0120-636-212
営業時間:9:00~19:00(土日祝休み)
この物件に関するお問い合わせの際は、
物件番号[81287]をお知らせください。
※不動産業者様からのお問い合わせはご遠慮ください。




















