| 賃料 | 100万円 | 共益費・管理費 | |
|---|---|---|---|
| 礼金 | 1ヶ月 | 敷金 | 4ヶ月 |
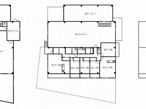
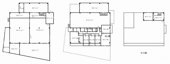
| 保証金 | 建物面積 | 891m² / 269.53坪 | |
| 坪単価 | 0.37万円 | 築年月 | 200204 |
| 所在地 | 埼玉県川口市大字安行原797番地9 | ||
| 交通 | 東武伊勢崎線 草加駅 バス( 乗14分 停歩4分) | ||
お電話でのお問い合わせ
0120-636-212
営業時間:9:00~19:00(土日祝休み)
この物件に関するお問い合わせの際は、
物件番号[81090]をお知らせください。
※不動産業者様からのお問い合わせはご遠慮ください。




















