| 賃料 | 595万8,100円 | 共益費・管理費 | 397,207円 |
|---|---|---|---|
| 礼金 | 敷金 | ||
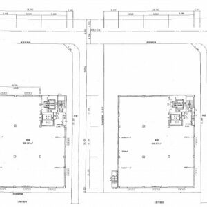
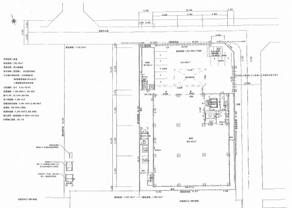
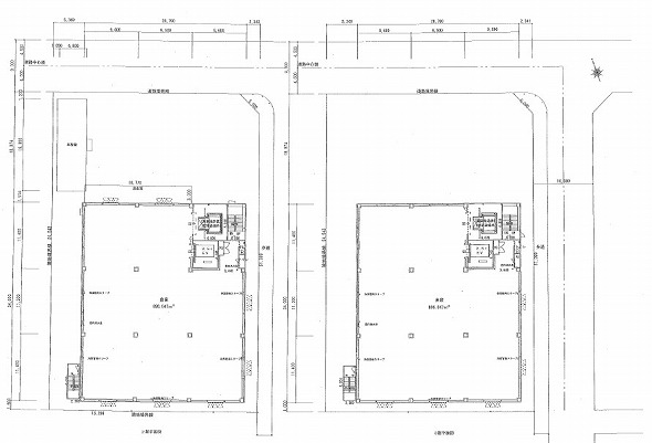
| 保証金 | 建物面積 | 3979.04m² / 1203.66坪 | |
| 坪単価 | 0.49万円 | 築年月 | |
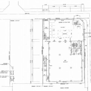
| 所在地 | 埼玉県八潮市大瀬5丁目7-7 ㈱清水運輸倉庫 伊勢野第1倉庫 | ||
| 交通 | 徒歩5分 | ||
お電話でのお問い合わせ
0120-636-212
営業時間:9:00~19:00(土日祝休み)
この物件に関するお問い合わせの際は、
物件番号[80920]をお知らせください。
※不動産業者様からのお問い合わせはご遠慮ください。
関東の貸倉庫・貸工場・貸土地はおまかせください
| 賃料 | 595万8,100円 | 共益費・管理費 | 397,207円 |
|---|---|---|---|
| 礼金 | 敷金 | ||
| 保証金 | 建物面積 | 3979.04m² / 1203.66坪 | |
| 坪単価 | 0.49万円 | 築年月 | |
| 所在地 | 埼玉県八潮市大瀬5丁目7-7 ㈱清水運輸倉庫 伊勢野第1倉庫 | ||
| 交通 | 徒歩5分 | ||
お電話でのお問い合わせ
営業時間:9:00~19:00(土日祝休み)
この物件に関するお問い合わせの際は、
物件番号[80920]をお知らせください。
※不動産業者様からのお問い合わせはご遠慮ください。
| 物件種別 | 貸倉庫・貸工場 | 建物構造 | |
|---|---|---|---|
| 敷地面積 | 所在階 | ||
| 取引形態 | 媒介 | 前面道路幅員 |
この物件の空き状況確認・資料請求・内見のご予約はこちらからお問い合わせください。
営業時間:9:00~19:00(土日祝休み)
この物件に関するお問い合わせの際は、
物件番号[80920]をお知らせください。