| 賃料 | 70万円 | 共益費・管理費 | |
|---|---|---|---|
| 礼金 | 1ヶ月 | 敷金 | 2ヶ月 |
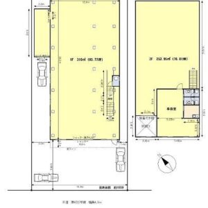
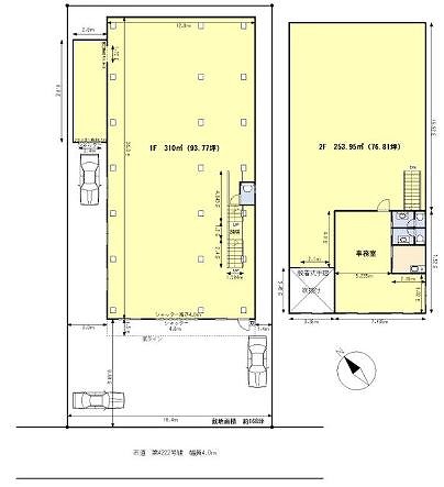
| 保証金 | 建物面積 | 563.95m² / 170.59坪 | |
| 坪単価 | 0.41万円 | 築年月 | 201404 |
| 所在地 | 埼玉県戸田市笹目8丁目16-17 笹目8丁目倉庫 | ||
| 交通 | 都営三田線 西高島平駅 徒歩22分 | ||
お電話でのお問い合わせ
0120-636-212
営業時間:9:00~19:00(土日祝休み)
この物件に関するお問い合わせの際は、
物件番号[80877]をお知らせください。
※不動産業者様からのお問い合わせはご遠慮ください。




















