| 賃料 | 26.4万円 | 共益費・管理費 | |
|---|---|---|---|
| 礼金 | 1ヶ月 | 敷金 | 3ヶ月 |
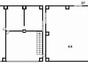
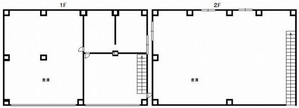
| 保証金 | 建物面積 | 189.9m² / 57.44坪 | |
| 坪単価 | 0.46万円 | 築年月 | 198101 |
| 所在地 | 埼玉県草加市谷塚町1324-2 マルマツ倉庫 別棟 | ||
| 交通 | 東武伊勢崎線 谷塚駅 徒歩7分 | ||
お電話でのお問い合わせ
0120-636-212
営業時間:9:00~19:00(土日祝休み)
この物件に関するお問い合わせの際は、
物件番号[80667]をお知らせください。
※不動産業者様からのお問い合わせはご遠慮ください。




















