| 賃料 | 145.75万円 | 共益費・管理費 | |
|---|---|---|---|
| 礼金 | 1ヶ月 | 敷金 | 3ヶ月 |
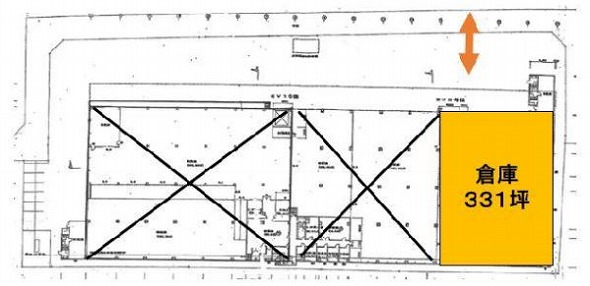
| 保証金 | 建物面積 | 1095.04m² / 331.25坪 | |
| 坪単価 | 0.44万円 | 築年月 | 199402 |
| 所在地 | 埼玉県入間郡三芳町大字上富2056 | ||
| 交通 | 東武東上線 ふじみ野駅 徒歩38分 | ||
お電話でのお問い合わせ
0120-636-212
営業時間:9:00~19:00(土日祝休み)
この物件に関するお問い合わせの際は、
物件番号[80665]をお知らせください。
※不動産業者様からのお問い合わせはご遠慮ください。




















