| 賃料 | 15.25万円 | 共益費・管理費 | |
|---|---|---|---|
| 礼金 | 2ヶ月 | 敷金 | 1ヶ月 |
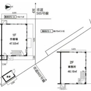
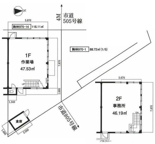
| 保証金 | 建物面積 | 92.38m² / 27.94坪 | |
| 坪単価 | 0.55万円 | 築年月 | 1987 |
| 所在地 | 埼玉県ふじみ野市駒林970-1 駒林貸工場 | ||
| 交通 | 東武東上線 ふじみ野駅 徒歩2200m | ||
お電話でのお問い合わせ
0120-636-212
営業時間:9:00~19:00(土日祝休み)
この物件に関するお問い合わせの際は、
物件番号[89007]をお知らせください。
※不動産業者様からのお問い合わせはご遠慮ください。

















