| 賃料 | 14.3万円 | 共益費・管理費 | |
|---|---|---|---|
| 礼金 | 敷金 | 3ヶ月 | |
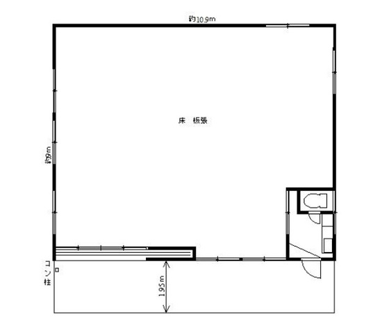
| 保証金 | 建物面積 | 104.34m² / 31.56坪 | |
| 坪単価 | 0.45万円 | 築年月 | 197807 |
| 所在地 | 埼玉県志木市下宗岡4丁目31-6 下宗岡四丁目倉庫 | ||
| 交通 | JR武蔵野線 北朝霞駅 徒歩42分 | ||
お電話でのお問い合わせ
0120-636-212
営業時間:9:00~19:00(土日祝休み)
この物件に関するお問い合わせの際は、
物件番号[88796]をお知らせください。
※不動産業者様からのお問い合わせはご遠慮ください。




















