| 賃料 | 110万円 | 共益費・管理費 | 33,000円 |
|---|---|---|---|
| 礼金 | 2ヶ月 | 敷金 | 5ヶ月 |
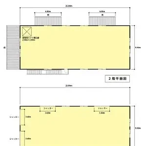
| 保証金 | 建物面積 | 545.85m² / 165.12坪 | |
| 坪単価 | 0.67万円 | 築年月 | 202407 |
| 所在地 | 神奈川県足柄上郡中井町井ノ口2442-5 グリーンテクなかい貸倉庫 | ||
| 交通 | |||
お電話でのお問い合わせ
0120-636-212
営業時間:9:00~19:00(土日祝休み)
この物件に関するお問い合わせの際は、
物件番号[61093]をお知らせください。
※不動産業者様からのお問い合わせはご遠慮ください。




















