| 賃料 | 455万8,900円 | 共益費・管理費 | |
|---|---|---|---|
| 礼金 | 1ヶ月 | 敷金 | 3ヶ月 |
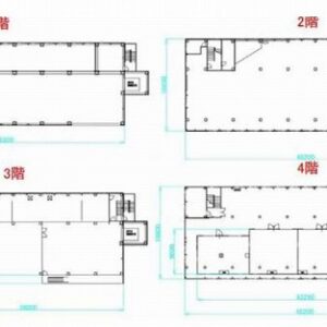
| 保証金 | 建物面積 | 3109.21m² / 940.54坪 | |
| 坪単価 | 0.48万円 | 築年月 | 199702 |
| 所在地 | 神奈川県藤沢市葛原1692 葛原940坪貸工場(一棟貸クリーンルームあり) | ||
| 交通 | 小田急江ノ島線 長後駅 徒歩52分 | ||
お電話でのお問い合わせ
0120-636-212
営業時間:9:00~19:00(土日祝休み)
この物件に関するお問い合わせの際は、
物件番号[60896]をお知らせください。
※不動産業者様からのお問い合わせはご遠慮ください。




















