| 賃料 | 100万円 | 共益費・管理費 | |
|---|---|---|---|
| 礼金 | 1ヶ月 | 敷金 | |
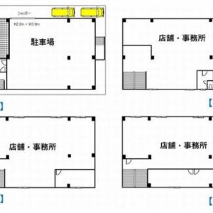
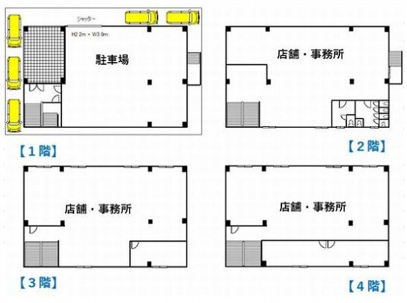
| 保証金 | 3ヶ月 | 建物面積 | 602.53m² / 182.27坪 |
| 坪単価 | 0.55万円 | 築年月 | 198612 |
| 所在地 | 神奈川県横浜市神奈川区片倉1丁目8-8 | ||
| 交通 | 横浜市営地下鉄ブルーライン 片倉町駅 徒歩9分 | ||
お電話でのお問い合わせ
0120-636-212
営業時間:9:00~19:00(土日祝休み)
この物件に関するお問い合わせの際は、
物件番号[60875]をお知らせください。
※不動産業者様からのお問い合わせはご遠慮ください。




















