| 賃料 | 37.3万円 | 共益費・管理費 | |
|---|---|---|---|
| 礼金 | 1ヶ月 | 敷金 | |
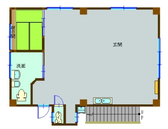
| 保証金 | 50万円 | 建物面積 | 165.74m² / 50.14坪 |
| 坪単価 | 0.74万円 | 築年月 | 198911 |
| 所在地 | 神奈川県川崎市中原区上小田中2丁目24-30 加藤プレス作業所 | ||
| 交通 | JR南武線 武蔵新城駅 徒歩12分 | ||
お電話でのお問い合わせ
0120-636-212
営業時間:9:00~19:00(土日祝休み)
この物件に関するお問い合わせの際は、
物件番号[64782]をお知らせください。
※不動産業者様からのお問い合わせはご遠慮ください。




















