| 賃料 | 66万円 | 共益費・管理費 | |
|---|---|---|---|
| 礼金 | 1ヶ月 | 敷金 | |
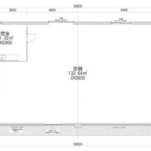
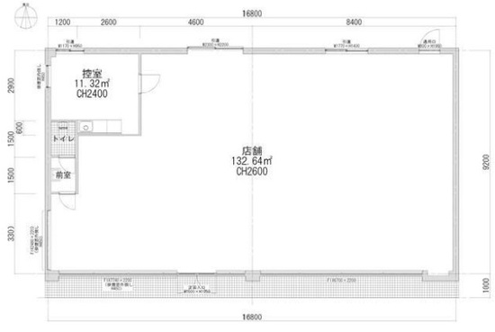
| 保証金 | 5ヶ月 | 建物面積 | 154.82m² / 46.83坪 |
| 坪単価 | 1.41万円 | 築年月 | 199906 |
| 所在地 | 群馬県富岡市内匠271-1 富岡市店舗 | ||
| 交通 | 上信電鉄 上州富岡駅 徒歩29分 上信電鉄 東富岡駅 徒歩28分 |
||
お電話でのお問い合わせ
0120-636-212
営業時間:9:00~19:00(土日祝休み)
この物件に関するお問い合わせの際は、
物件番号[30266]をお知らせください。
※不動産業者様からのお問い合わせはご遠慮ください。



















