| 賃料 | 17万円 | 共益費・管理費 | |
|---|---|---|---|
| 礼金 | 1ヶ月 | 敷金 | 1ヶ月 |
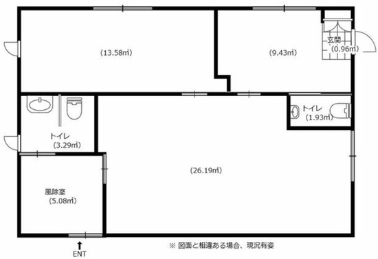
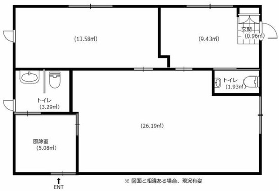
| 保証金 | 建物面積 | 63.71m² / 19.27坪 | |
| 坪単価 | 0.88万円 | 築年月 | 202109 |
| 所在地 | 栃木県野木町大字丸林624-16 野木町丸林貸店舗・事務所 | ||
| 交通 | JR東北本線 野木駅 徒歩12分 | ||
お電話でのお問い合わせ
0120-636-212
営業時間:9:00~19:00(土日祝休み)
この物件に関するお問い合わせの際は、
物件番号[20166]をお知らせください。
※不動産業者様からのお問い合わせはご遠慮ください。




















