| 賃料 | 17.6万円 | 共益費・管理費 | |
|---|---|---|---|
| 礼金 | 1ヶ月 | 敷金 | |
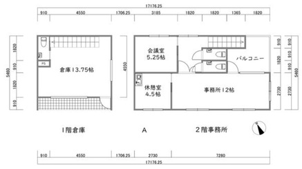
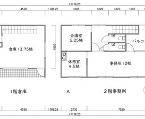
| 保証金 | 建物面積 | 69.5m² / 21.02坪 | |
| 坪単価 | 0.84万円 | 築年月 | 202407 |
| 所在地 | 群馬県高崎市八千代町1丁目14-5 グラン・フェニーチェⅠ/A | ||
| 交通 | JR高崎線 高崎駅 徒歩29分 | ||
お電話でのお問い合わせ
0120-636-212
営業時間:9:00~19:00(土日祝休み)
この物件に関するお問い合わせの際は、
物件番号[30129]をお知らせください。
※不動産業者様からのお問い合わせはご遠慮ください。




















