| 賃料 | 33万円 | 共益費・管理費 | 33,000円 |
|---|---|---|---|
| 礼金 | 敷金 | 3.3ヶ月 | |
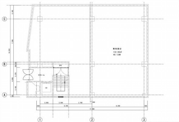
| 保証金 | 建物面積 | 148.13m² / 44.81坪 | |
| 坪単価 | 0.74万円 | 築年月 | 198906 |
| 所在地 | 千葉県船橋市金杉7丁目6-12 ステップビル | ||
| 交通 | 新京成電鉄 滝不動駅 徒歩13分 | ||
お電話でのお問い合わせ
0120-636-212
営業時間:9:00~19:00(土日祝休み)
この物件に関するお問い合わせの際は、
物件番号[70707]をお知らせください。
※不動産業者様からのお問い合わせはご遠慮ください。


















