| 賃料 | 151万円 | 共益費・管理費 | |
|---|---|---|---|
| 礼金 | 1ヶ月 | 敷金 | 3ヶ月 |
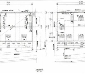
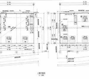
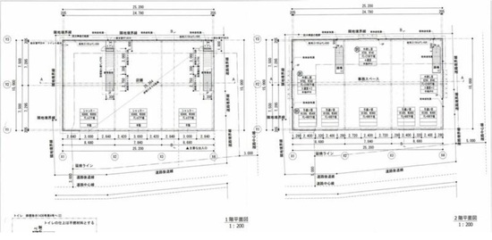
| 保証金 | 建物面積 | 756m² / 228.69坪 | |
| 坪単価 | 0.66万円 | 築年月 | 202510 |
| 所在地 | 千葉県野田市中里 オプス野田 | ||
| 交通 | 東武野田線 川間駅 徒歩32分 バス(川間小学校入口 乗10分 停歩1分) | ||
お電話でのお問い合わせ
0120-636-212
営業時間:9:00~19:00(土日祝休み)
この物件に関するお問い合わせの際は、
物件番号[72103]をお知らせください。
※不動産業者様からのお問い合わせはご遠慮ください。




















