千葉県茂原市腰当38-1 100坪 (物件番号72043)

賃料 49.5万円 共益費・管理費
礼金 1ヶ月 敷金 3ヶ月
保証金 建物面積 330.71m² / 100.04坪
坪単価 0.49万円 築年月 199206
所在地 千葉県茂原市腰当38-1 富田店舗
交通 JR外房線 新茂原駅 徒歩1,300m

お電話でのお問い合わせ

0120-636-212

営業時間:9:00~19:00(土日祝休み)

この物件に関するお問い合わせの際は、
物件番号[72043]をお知らせください。

※不動産業者様からのお問い合わせはご遠慮ください。

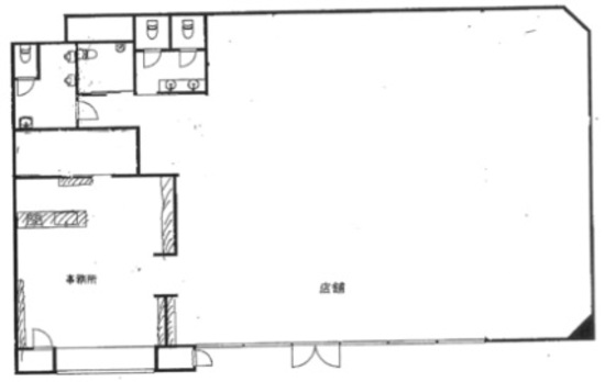
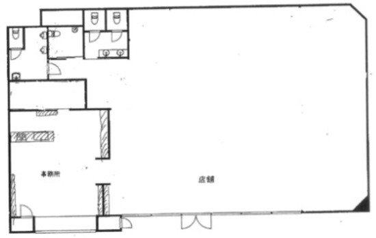
物件写真

千葉県茂原市腰当38-1 100坪 貸倉庫・貸工場|L-Net(エルネット) 画像1 千葉県茂原市腰当38-1 100坪 貸倉庫・貸工場|L-Net(エルネット) 画像2 72043-3.jpg 72043-4.jpg

物件詳細

物件種別 貸倉庫・貸工場 建物構造 SRC
敷地面積 所在階 1階
取引形態 媒介 前面道路幅員

おすすめポイント

・事務所(スペースあり)/店舗/倉庫利用相談可

・平屋建て

・駐車場(無料、空き8台分)あり

・トイレあり

・付近に飲食店、スーパーあり

この物件の空き状況確認・資料請求・内見のご予約はこちらからお問い合わせください。


検討中物件お問い合わせ